028-60192238
18382261921
首页
taptap下载ipad版
新闻动态
了解保能
taptap安装包百度
taptap安装包入口
taptap安装包地址
taptap安装lol
taptap安装app
taptap下载ipad版
PRODUCT SHOW
taptap安装app
TapTapweb端
taptapapp下载
taptapt下载
taptapbeta下载
防爆风机
taptapp国际版
taptapbeta官网
高温风机
taptapbeta
厨房专业风机
屋顶风机
射流风机/隧道风机
除尘风机
斜流风机
taptapapp官网下载
生产现场
工程机械配套风机
风机维修
首页
>
taptap下载ipad版
>
TapTapweb端
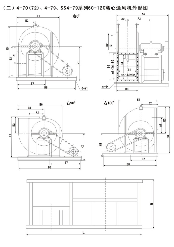
4-79离心风机
028-60192238
18382261921
技术参数
使用手册
产品概述、特点
维护保养
产品的性能选择和型号说明
4-72,4-79,SS4-79系列离心式通风机,其效率和比A声级均达到或优于机械工业部制订的A级标准。广泛应用于各类大中型工厂和民用建筑,大型场馆等场所。
SS4-79系列双速噪声离心式通风机,以4-79型离心式配变极多速三相民步电机构成,使风机在保留原型风机优特点的同时,又具有转速可调,风量及风压可在大范围内变化,结构简单,价格合理的优点,可以一机两用,节省投资和运行费用。
4-72,4-79,SS4机-79系列离心风机作一般通风换气用,输送空气或其它不易燃易爆,无腐蚀性的气体,气体内无粘性物质,所含的尘土及硬质颗粒物不大于150mg/m3,温度不超过80摄氏度。
注:F4-72/79为防腐型离心风机,用于输送有腐蚀性的气体,用玻璃钢为制作材料。
B4-72/79为防爆型离心风机,用于输送易燃的易爆的气体,电机配用隔爆电机,防爆要求较低的采用铁制叶轮,防爆要求较高的使用铝合金叶轮。
FB4-72/79为防腐防爆型离心风机,用于输送有腐蚀性且易燃易爆的气体。
查看详情
map